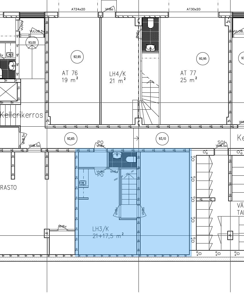
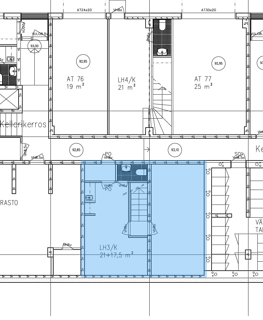
Puijonkadulta katutason liiketila ja varastotila. Liiketila 74m2 ja kellarikerroksen varasto 38,5m2. Liiketilan näyteikkunat on Puijonkadulle. Heti vapaa tila. Soita ja kysy lisää tai sovi näytöstä.
Katutasossa
Näkyvällä paikalla

Fine LKV
Minna Moisio
Toimitilavuokraus, LKV
Näytä puhelinnumero
0505417349
minna@finelkv.fi
Leväsentie 2, 70700 Kuopio
Yliopistonkatu 28, 40100 Jyväskylä
Toimin kaupallisena managerina ja toimitilavuokraajana, otathan yhteyttä jos mietit mahdollisia muutostöitä tai esillä olevista toimitiloista ei löydy sitä mitä etsit. Selvitetään muut tila mahdollisuudet. Asiakaslähtöisyys on minulle tärkeää sekä asioiden sujuvuus. Ota yhteyttä, mielelläni autan sinua.
Fine LKV vuokraa laadukkaita toimitiloja sekä tuottaa kaupallisen managerin palveluita – ammattitaidolla.
Y-tunnus: 3495891-1
minna@finelkv.fi
050 541 7349
Leväsentie 2
70700 Kuopio
Yliopistonkatu 28
40100 Jyväskylä
Tämän kiinteistön tilat ei näy toistaiseksi vielä Toimitilat.fi -portaalissa. Ota yhteyttä tämän yhteydenottolomakkeen kautta.