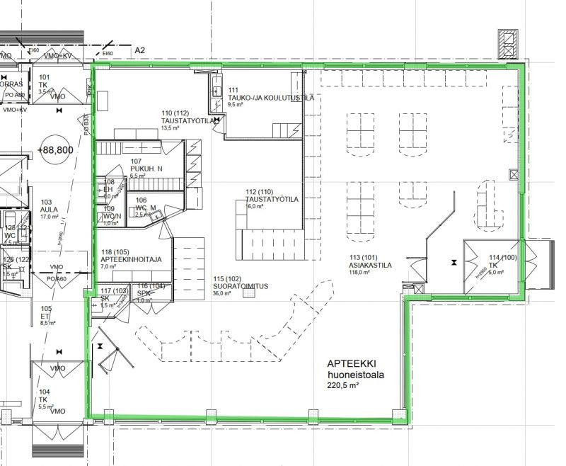
Puistokatu 4, vuokrataan heti vapaa katutason valoisa liiketila 235,5m2. Liiketila on esteetön ja tilaan on useampi käyntiovi. Tila on sisältä avara, ikkunat avautuu Puistokadulla. Aiemmin tilassa on toiminut mm. apteekki. Jäähdytettävä ilmanvaihto. Liiketila sijaitsee lähellä kävelykatua. Pysäköinti Puistokadulla tai viereisessä Kolmikulman parkkihallissa.
Tilamuutokset on mahdollisia, nykyisessä tilassa on keittiö, taukotilat ja wc.t sekä varastotilaa.
Ole yhteydessä mielelläni kerron tilasta lisää tai sovitaan näyttöaika tilaan.
Katutasossa
Näkyvällä paikalla

Fine LKV
Minna Moisio
Toimitilavuokraus, LKV
Näytä puhelinnumero
0505417349
minna@finelkv.fi
Leväsentie 2, 70700 Kuopio
Yliopistonkatu 28, 40100 Jyväskylä
Toimin kaupallisena managerina ja toimitilavuokraajana, otathan yhteyttä jos mietit mahdollisia muutostöitä tai esillä olevista toimitiloista ei löydy sitä mitä etsit. Selvitetään muut tila mahdollisuudet. Asiakaslähtöisyys on minulle tärkeää sekä asioiden sujuvuus. Ota yhteyttä, mielelläni autan sinua.
Fine LKV vuokraa laadukkaita toimitiloja sekä tuottaa kaupallisen managerin palveluita – ammattitaidolla.
minna@finelkv.fi
050 541 7349
Leväsentie 2
70700 Kuopio
Yliopistonkatu 28
40100 Jyväskylä
Tämän kiinteistön tilat ei näy toistaiseksi vielä Toimitilat.fi -portaalissa. Ota yhteyttä tämän yhteydenottolomakkeen kautta.